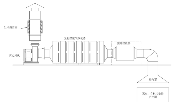
光觸媒廢氣處理設備裝置原理:采用高能C波段(僅次于切割不銹鋼的激光,強于氬弧焊光源的數十倍強度)在設備內,強裂解惡臭物質分子鏈,改變物質結構,將高分子污染物質,裂解、氧化成為...
保排放達標
快24小時快速響應
終終身維護
光觸媒廢氣處理設備裝置原理:采用高能C波段(僅次于切割不銹鋼的激光,強于氬弧焊光源的數十倍強度)在設備內,強裂解惡臭物質分子鏈,改變物質結構,將高分子污染物質,裂解、氧化成為低分子無害物質,如水和二氧化碳等。

1、采用世界最尖端納米光觸媒技術制造的管道安裝型空氣凈化器,安裝方便。
2、該凈化器可被安裝在任何中央空調系統管道及空氣處理系統中。
3、該凈化器為物理不產生二次污染,運行成本特別低廉,可長時間不間斷運行。
4、采用子西萊光觸媒無毒副作用,對人體無害,安全可靠。
5、光觸媒與紫外線的雙重作用,保證了殺菌、消毒的效果。
6、裝置具有非常小的風阻。對于已運行系統的改造非常方便,不會因為增加此裝置而對系統產生其它不良影響。
煉油廠、橡膠廠、皮革廠、印刷廠、化工廠、制藥廠、金屬鑄造廠、噴涂溶劑等有機和無機物惡臭氣體的脫臭凈化處理;
噴漆(涂)車間、化工、醫藥、橡膠、食品、印染、造紙、釀造、電鍍等生產過程中產生的有毒有害廢氣。